Land Appraisal Services
Understanding what your land is worth can be a difficult task. From marshland and wetlands to vacant commercial land and agricultural land, there are dozens of factors that may impact whether your property is of little value or usable and worth significant sums. The McCoy Valuation team brings a wealth of experience to helping you determine the value of land by considering a variety of factors including location, zoning, topography, and access to utilities and infrastructure.
McCoy Valuation
Land Valuation for Proposed Commercial Development
Developers wanting to convert vacant land into commercial or residential uses may require an appraisal when acquiring a site, assessing project viability, or seeking financing. Among the most important considerations in valuing land for proposed development is understanding zoning requirements, proximity to utilities/infrastructure, and environmental issues.
McCoy Valuation
Multifamily Land Appraisal
One of the most common types of land valuation services McCoy Valuation provides is multifamily land appraisals. Apartment developers often identify parcels of land that are ripe for development and must inform lenders and investors how much the land is worth per apartment. This could include “as-is” land that requires site work and has not yet been improved or modified. In other cases, it may include “by-right” land that has been prepared for multifamily development with proper zoning, infrastructure, and approvals.
Land valuation can vary widely depending on how much work has been completed on the undeveloped sites. For properties located far from existing utility infrastructure, additional and sometimes expensive site work may be needed to ensure multifamily buildings can receive adequate plumbing, electricity, and water. Additionally, whether or not a property will require rezoning may impact valuation as well as status of any necessary approvals.
McCoy Valuation
Farmland and Timberland Valuation
Various timberland tracts throughout Southern Virginia and Eastern North Carolina are valued based on their potential use, agricultural production, topography, and vegetation. Recreational land, for example, may be used for activities such as hunting, fishing, and camping. Property owners may find it desirable to have specific trees or streams that are conducive to certain wildlife. For timberland, the age and type of tree planted on a property will impact its value as trees are harvested every so often. Having a trail system and vehicle access may also be a consideration.
McCoy Valuation
Conservation Easements
In Virginia and North Carolina, protecting natural resources is considered a public priority. According to the Wetlands Watch Organization, a conservation easement is “a voluntary, but legally-binding, agreement between a property owner and a landholding entity, in which development rights of a property are limited in perpetuity to preserve its ecological values.” These types of easements entail government entities acquiring development rights of qualifying parcels of land. This allows landowners to both protect their property and generate allowances while holding the property. As appraisers, the McCoy Valuation team will often look at the value of land with and without easements on behalf of property owners.
McCoy Valuation
Major Land Appraisal Assignments
Port 460 Logistics Center is a proposed industrial distribution warehouse development located in the South Suffolk submarket. The property features 586,660 square feet of industrial distribution space across two buildings which sit on a 72-acre site.
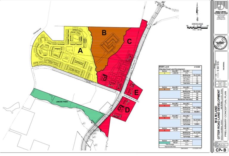
This land is a proposed multi-family, townhome residential, and commercial property situated on 69.60-acres in the Chesterfield submarket. The proposed development is planned for 325 finished developed pad ready townhome lots, a 200-unit multifamily ready site, retails pad sites for 180,000 sf of retail including sites for c-store centers and additional fast-food/retail pads.
McCoy Valuation
Contact Our Team
Share more about your appraisal needs and our team will reach out to you shortly about your assignment and how we can help.